Active

Listing Tools

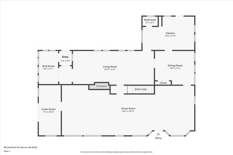
A property with presence, possibility, and a story yet to be written. Set along one of Bourne's most recognizable corridors offering a rare blend of land, location, and flexibility. Rich woodworking throughout the home reflects the warmth and craftsmanship of an earlier era, providing timeless character and an inviting foundation for thoughtful restoration or enhancement.The home sits on a generously sized parcel, creating an ideal canvas for those looking to personalize, restore, or reimagine a Cape Cod property. Enjoyed as a year-round residence, seasonal retreat, or long-term investment, the setting offers convenience and character with strong frontage, excellent visibility, and easy access to major routes, bridges, beaches, and everyday amenities.The property benefits from mixed-use zoning, suggesting potential for expansion, possible ADU considerations, or future subdivision (subject to town approvals). For business use, the exposure is exceptional with ample land to support parking. Buyers/agents to perform their own due diligence regarding zoning, permitted uses, and development potential.

Property Details of 896 Sandwich Road

Property Details

Interior Features

Exterior Features

Utilities and Appliances

Community

Other Details

Map Location

Driving Directions

Listed by Fisher + Marks of Berkshire Hathaway HomeServices Robert Paul Properties (fisherandmarks@robertpaul.com)

broker reciprocity The data relating to real estate for sale on this site comes from the Broker Reciprocity (BR) of the Cape Cod & Islands Multiple Listing Service, Inc. Summary or thumbnail real estate listings held by brokerage firms other than Strawberry Hill Real Estate are marked with the BR Logo and detailed information about them includes the name of the listing broker. Neither the listing broker nor Strawberry Hill Real Estate shall be responsible for any typographical errors, misinformation, or misprints and shall be held totally harmless.

This site was last updated February 13, 2026 11:51 PM EST. All properties are subject to prior sale, changes, or withdrawal.

Strawberry Hill Real Estate has chosen to display only certain towns and/or types or styles of properties. This site may not show all listings that are available through the Cape Cod & Islands Multiple Listing Service, Inc.

I agree to receive marketing and customer service calls and text messages from Strawberry Hill Real Estate. To opt out, you can reply 'stop' at any time or click the unsubscribe link in the emails. Consent is not a condition of purchase. Msg/data rates may apply. Msg frequency varies. Privacy Policy.

Do not fill in this field:

This site is protected by reCAPTCHA and the Google Privacy Policy and Terms of Service apply.

Do not fill in this field:

This site is protected by reCAPTCHA and the Google Privacy Policy and Terms of Service apply.

Do not fill in this field:

This site is protected by reCAPTCHA and the Google Privacy Policy and Terms of Service apply.

Do not fill in this field:

This site is protected by reCAPTCHA and the Google Privacy Policy and Terms of Service apply.

Do not fill in this field:

This site is protected by reCAPTCHA and the Google Privacy Policy and Terms of Service apply.

Do not fill in this field:

This site is protected by reCAPTCHA and the Google Privacy Policy and Terms of Service apply.

$

Do not fill in this field:

This site is protected by reCAPTCHA and the Google Privacy Policy and Terms of Service apply.